The project of a one-story house with an attic and a large front window in the living room

197 m² total area / 2120 ft² 2 floors 4 bedrooms 2 bathrooms
The project of a one-story house with an attic and a large front window in the living room
Click to view

Description

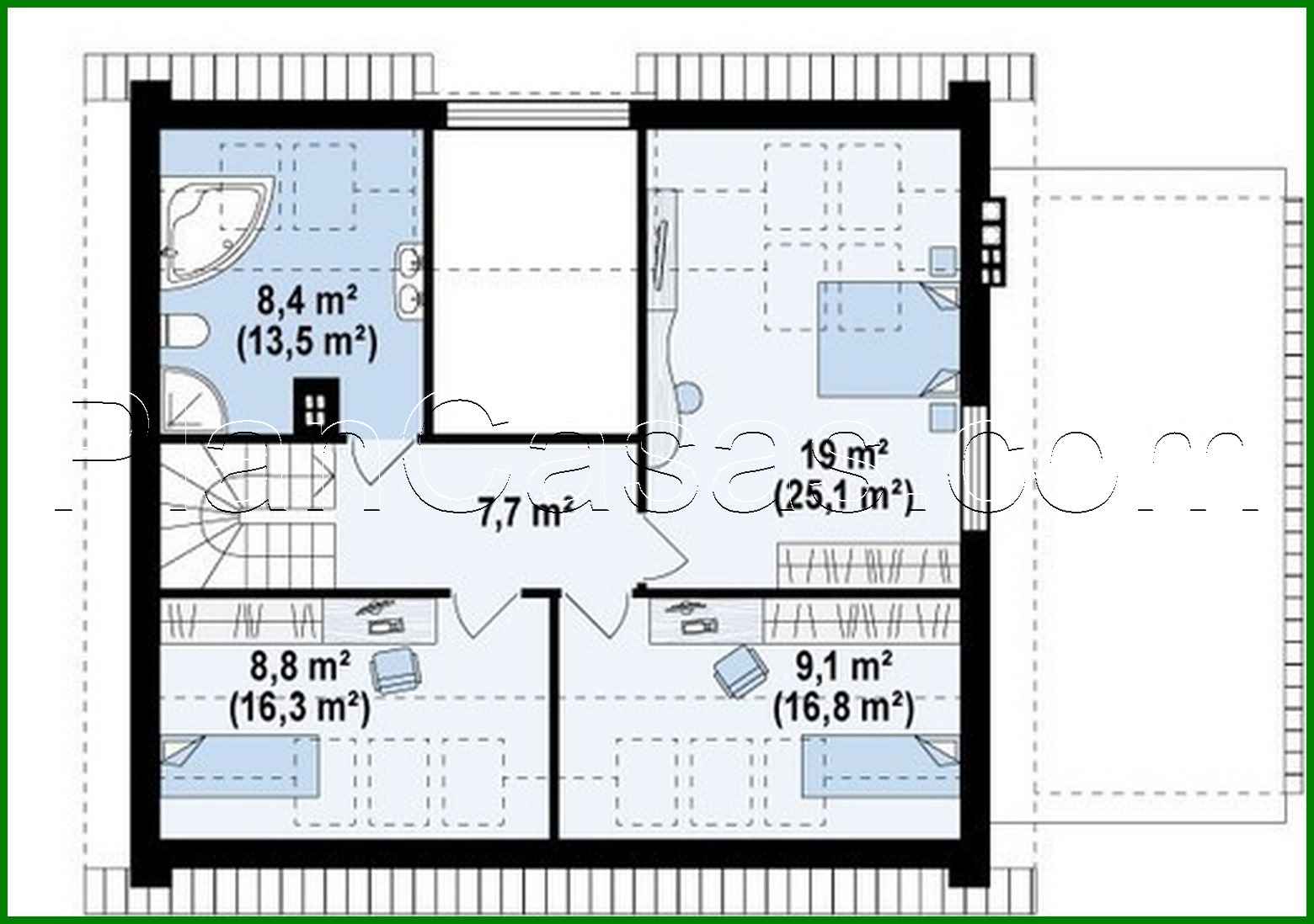
The project of a one-story house with an attic and a large front window in the living room Number of floors: 2 Total area: 197.00 m2 Living Area: 142.50 m2 House height: 8.00 m Ceiling Height: 2.80 m Roof Angle: 37 ° Roof area: 195.00 m2 Cubic capacity: 485.00 m3 Number of bedrooms: 4 Number of bathrooms: 2 Garage: Garage for one car Minimum plot size (length): 22.24 m Minimum plot size (width): 18.64 m Materials: Walls: aerated concrete, ceramic blocks Overlap: monolithic overlap Roofing: ceramic tile, metal tile, cement-sand tile Foundation: monolithic tape band

Interested in this plan?

Contact us to get full blueprints, construction estimate, or adapt this plan to your plot and needs.

Request more information

Visualization gallery