The project of a country cottage with a corner window in the kitchen

198 m² total area / 2131 ft² 2 floors 3 bedrooms 2 bathrooms
The project of a country cottage with a corner window in the kitchen
Click to view

Description

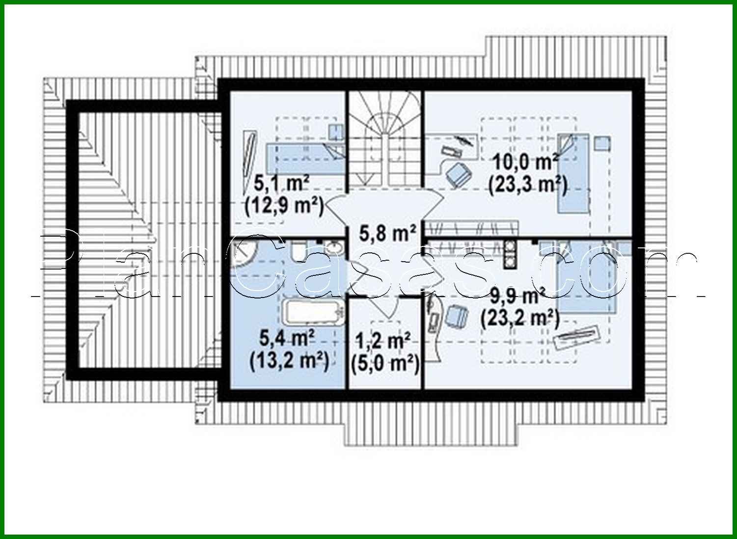
The project of a country cottage with a corner window in the kitchen Number of floors: 2 Total area: 198.00 m2 Living Area: 124.00 m2 House height: 6.00 m Ceiling Height: 2.80 m Roof Angle: 35 ° / 45 ° Roof area: 217.00 m2 Cubature: 442.00 m3 Number of bedrooms: 3 Number of bathrooms: 2 Garage: Garage for one car Minimum plot size (length): 17.00 m Minimum plot size (width): 23.00 m Materials: Walls: aerated concrete, ceramic blocks Overlap: monolithic overlap Roofing: ceramic tile, metal tile, cement-sand tile Foundation: monolithic tape band

Interested in this plan?

Contact us to get full blueprints, construction estimate, or adapt this plan to your plot and needs.

Request more information

Visualization gallery