The project of a cozy two-story house with spacious verandas and terraces

168 m² total area / 1808 ft² 2 floors 4 bedrooms 2 bathrooms
The project of a cozy two-story house with spacious verandas and terraces
Click to view

Description

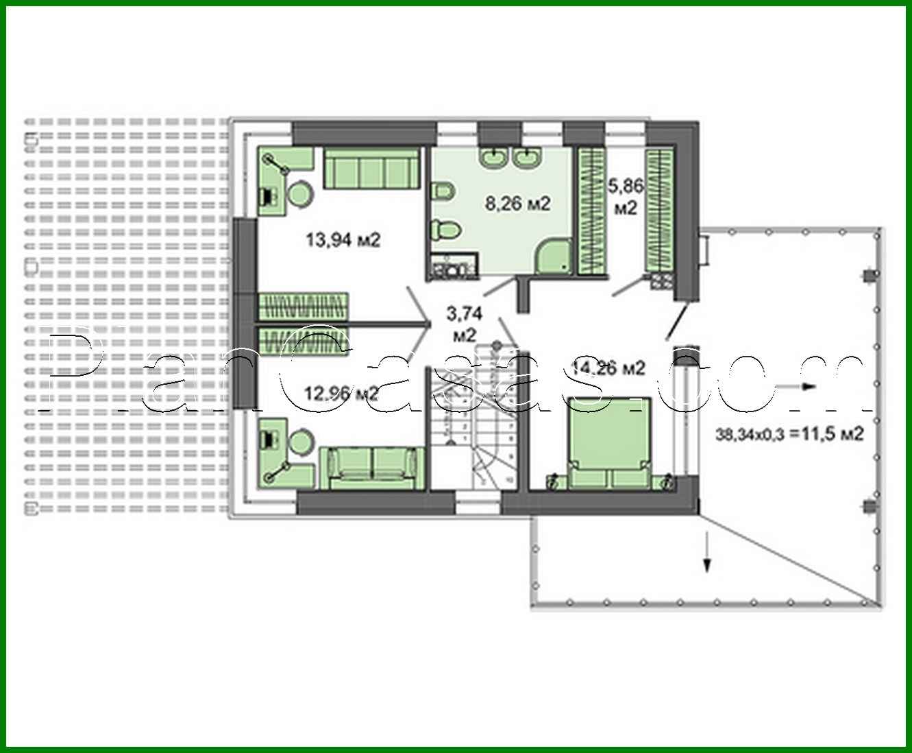
The project of a cozy two-story house with spacious verandas and terraces Number of floors: 2 Total area: 168.40 m2 Living Area: 69.15 m2 House height: 7.55 m Ceiling Height: 3.00 m Roof Angle: 2 ° Roof area: 69.00 m2 Number of bedrooms: 4 Number of bathrooms: 2 Minimum plot size (length): 19.50 m Minimum plot size (width): 15.50 m Built-up area: 131.94 m2 Materials: Walls: aerated concrete blocks Overlap: monolithic overlap Roofing: PVC membrane Foundation: Piles

Interested in this plan?

Contact us to get full blueprints, construction estimate, or adapt this plan to your plot and needs.

Request more information

Visualization gallery