The project of a modern house of the original layout in the style of minimalism with a total area of 224 square meters. 

225 m² total area / 2422 ft² 2 floors 4 bedrooms 2 bathrooms
The project of a modern house of the original layout in the style of minimalism with a total area of 224 square meters. 
Click to view

Description

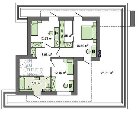
The project of a modern house of the original layout in the style of minimalism with a total area of 224 square meters. Number of floors: 2 Total area: 224.67 m2 Living Area: 80.76 m2 House height: 7.80 m Ceiling Height: 2.80 m Roof Angle: 2 ° Roof Area: 71.50 m2 Number of bedrooms: 4 Number of bathrooms: 2 Garage: Two-car garage Minimum plot size (length): 22.00 m Minimum plot size (width): 23.00 m Materials: Walls: aerated concrete, ceramic blocks Overlap: monolithic overlap Roofing: PVC membrane Foundation: monolithic tape

Interested in this plan?

Contact us to get full blueprints, construction estimate, or adapt this plan to your plot and needs.

Request more information

Visualization gallery