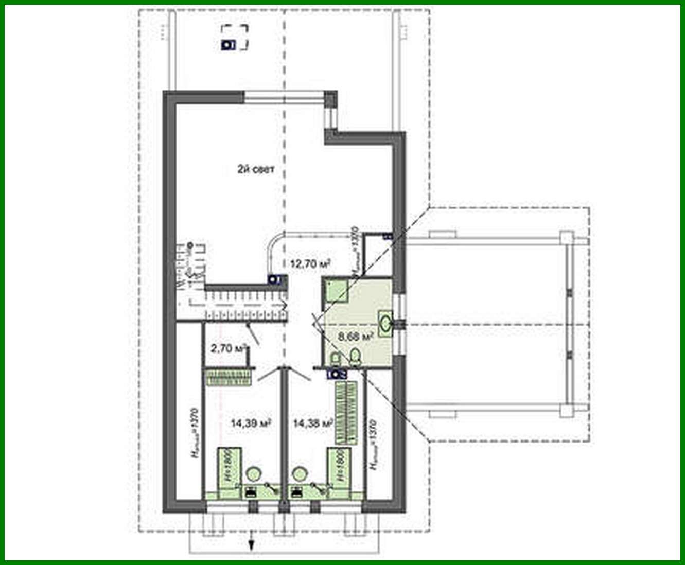
Beautiful apartment building with an unusual garage solution
173 m² total area
/ 1862 ft²
2 floors
4 bedrooms
2 bathrooms
Click to view
‹
›
Description
Beautiful apartment building with an unusual garage solution Number of floors: 2 Total area: 173.40 m2 Living Area: 89.35 m2 House height: 7.17 m Ceiling Height: 2.80 m Roof Angle: 35 ° Roof area: 335.00 m2 Cubic capacity: 511.96 m3 Number of bedrooms: 4 Number of bathrooms: 2 Minimum plot size (length): 24.00 m Minimum plot size (width): 17.00 m Built-up area: 254.2 m2 Materials: Walls: aerated concrete blocks Overlap: monolithic overlap Roofing: metal tile, ceramic tile, bitumen Foundation: monolithic tape
Interested in this plan?
Contact us to get full blueprints, construction estimate, or adapt this plan to your plot and needs.
Request more informationVisualization gallery