Two-storey cottage with large panoramic windows and a spacious terrace

170 m² total area / 1830 ft² 2 floors 3 bedrooms 2 bathrooms
Two-storey cottage with large panoramic windows and a spacious terrace
Click to view

Description

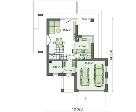
Two-storey cottage with large panoramic windows and a spacious terrace Number of floors: 2 Total area: 169.89 m2 Living Area: 74.95 m2 House height: 8.80 m Ceiling Height: 2.80 m Roof Angle: 20 ° Roof area: 158.00 m2 Cubature: 398.00 m3 Number of bedrooms: 3 Number of bathrooms: 2 Garage: Two-car garage Minimum plot size (length): 18.66 m Minimum plot size (width): 20.86 m Built-up area: 226.6 m2 Materials: Walls: aerated concrete blocks Overlap: monolithic overlap Roofing: metal tile, ceramic tile, bitumen Foundation: monolithic tape

Interested in this plan?

Contact us to get full blueprints, construction estimate, or adapt this plan to your plot and needs.

Request more information

Visualization gallery