The project of a large house with an attic, a garage for two cars

230 m² total area / 2476 ft² 1 floor 4 bedrooms 2 bathrooms
The project of a large house with an attic, a garage for two cars
Click to view

Description

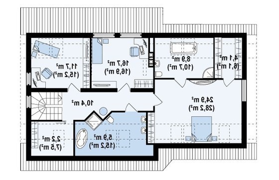
The project of a large house with an attic, a garage for two cars<br data-rich-text-line-break="true" />Number of floors: 2<br data-rich-text-line-break="true" />Total area: 230.00 m2<br data-rich-text-line-break="true" />Living Area: 169.80 m2<br data-rich-text-line-break="true" />House height: 7.50 m<br data-rich-text-line-break="true" />Ceiling Height: 2.80 m<br data-rich-text-line-break="true" />Roof Angle: 40 °<br data-rich-text-line-break="true" />Number of bedrooms: 4<br data-rich-text-line-break="true" />Number of bathrooms: 2<br data-rich-text-line-break="true" />Garage: Two-car garage<br data-rich-text-line-break="true" />Minimum plot size (length): 24.08 m<br data-rich-text-line-break="true" />Minimum plot size (width): 18.58 m<br data-rich-text-line-break="true" />Materials:<br data-rich-text-line-break="true" />Walls: aerated concrete, ceramic blocks<br data-rich-text-line-break="true" />Overlap: monolithic overlap<br data-rich-text-line-break="true" />Roofing: ceramic tile, metal tile, cement-sand tile<br data-rich-text-line-break="true" />Foundation: monolithic tape

Interested in this plan?

Contact us to get full blueprints, construction estimate, or adapt this plan to your plot and needs.

Request more information

Visualization gallery