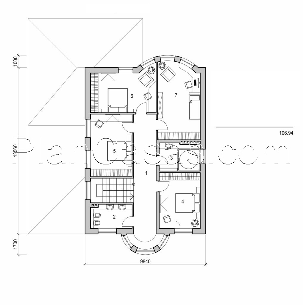
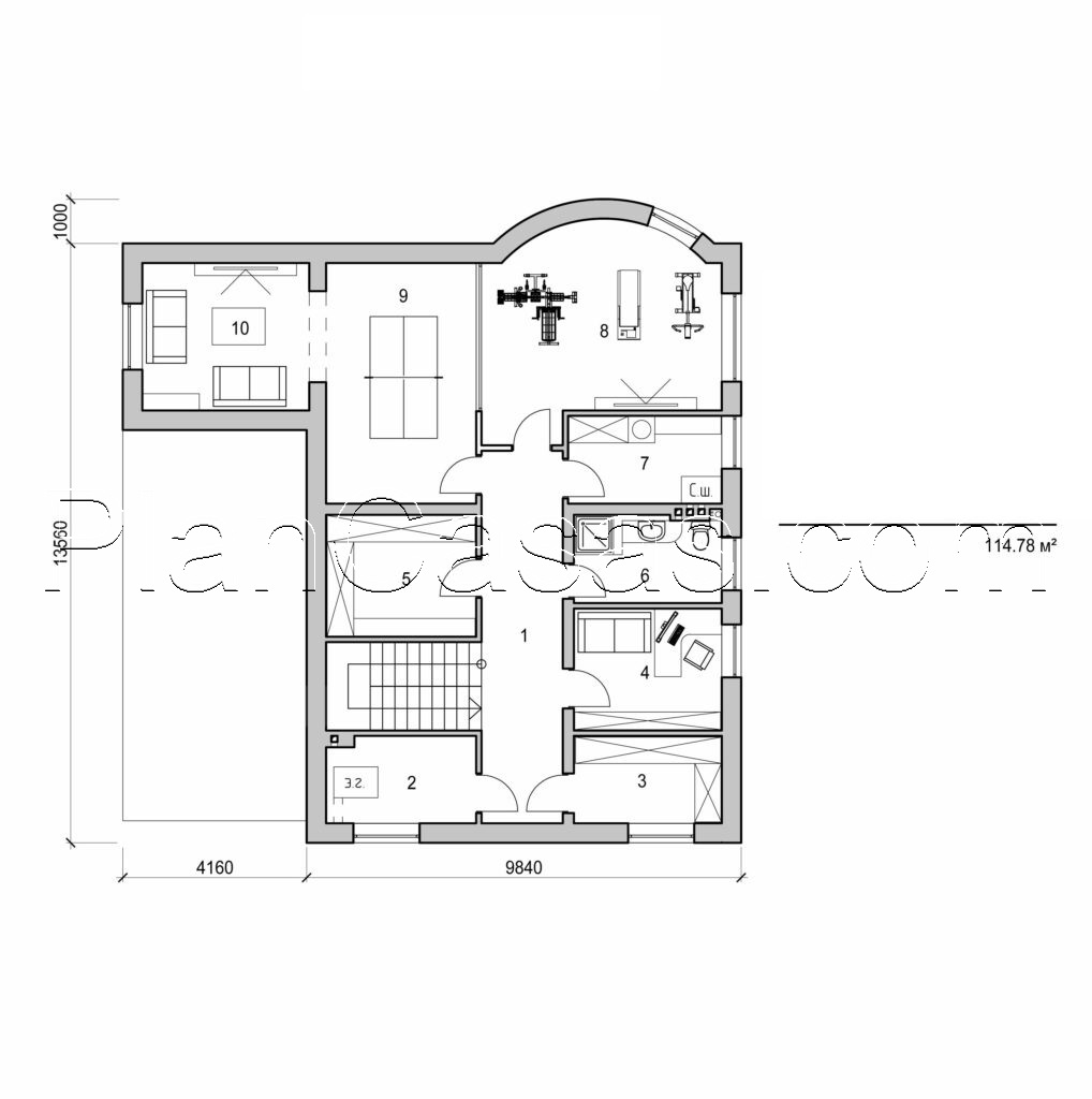
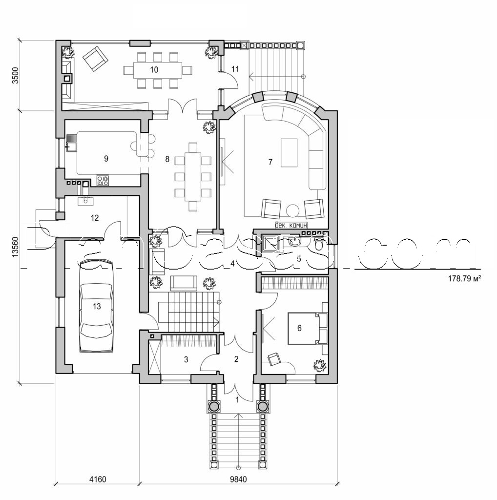
Two storey mansion

399 m² total area / 4295 ft² 2 floors bedrooms
Two storey mansion
Click to view

Interested in this plan?

Contact us to get full blueprints, construction estimate, or adapt this plan to your plot and needs.

Request more information

Visualization gallery