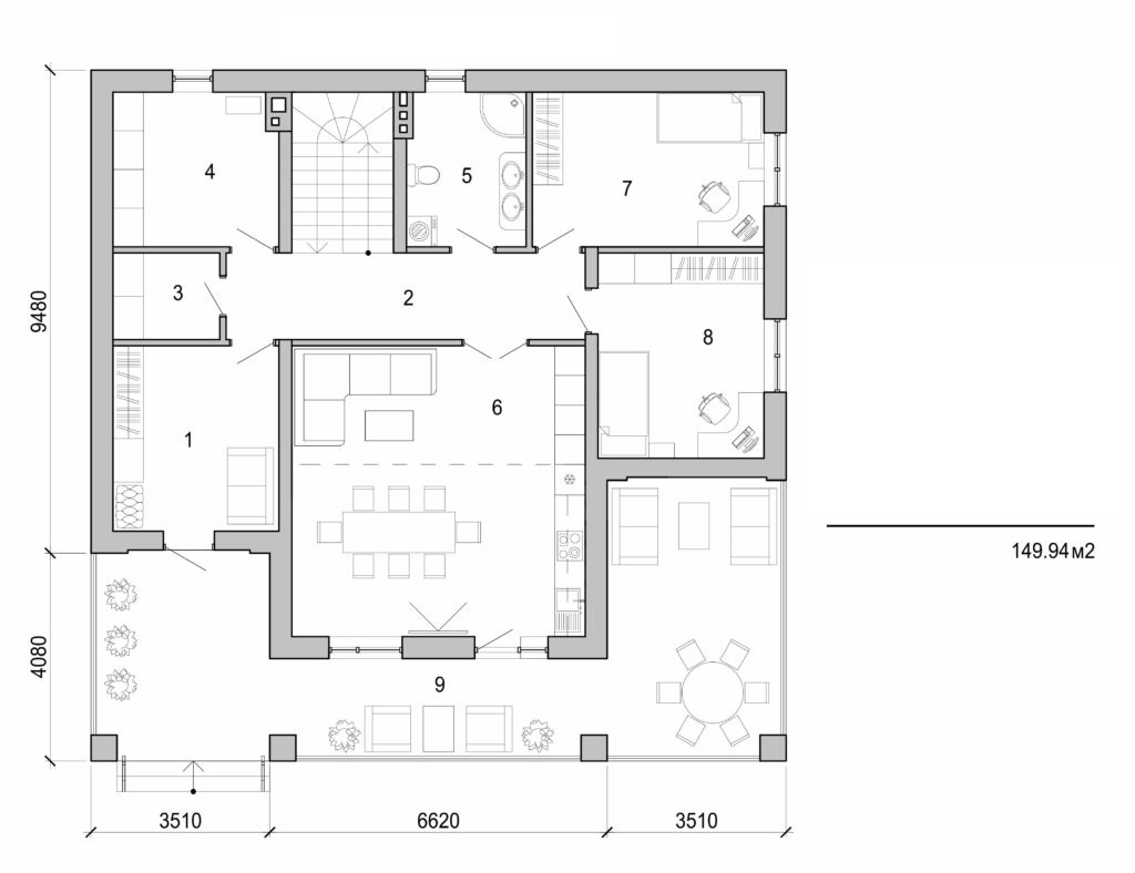
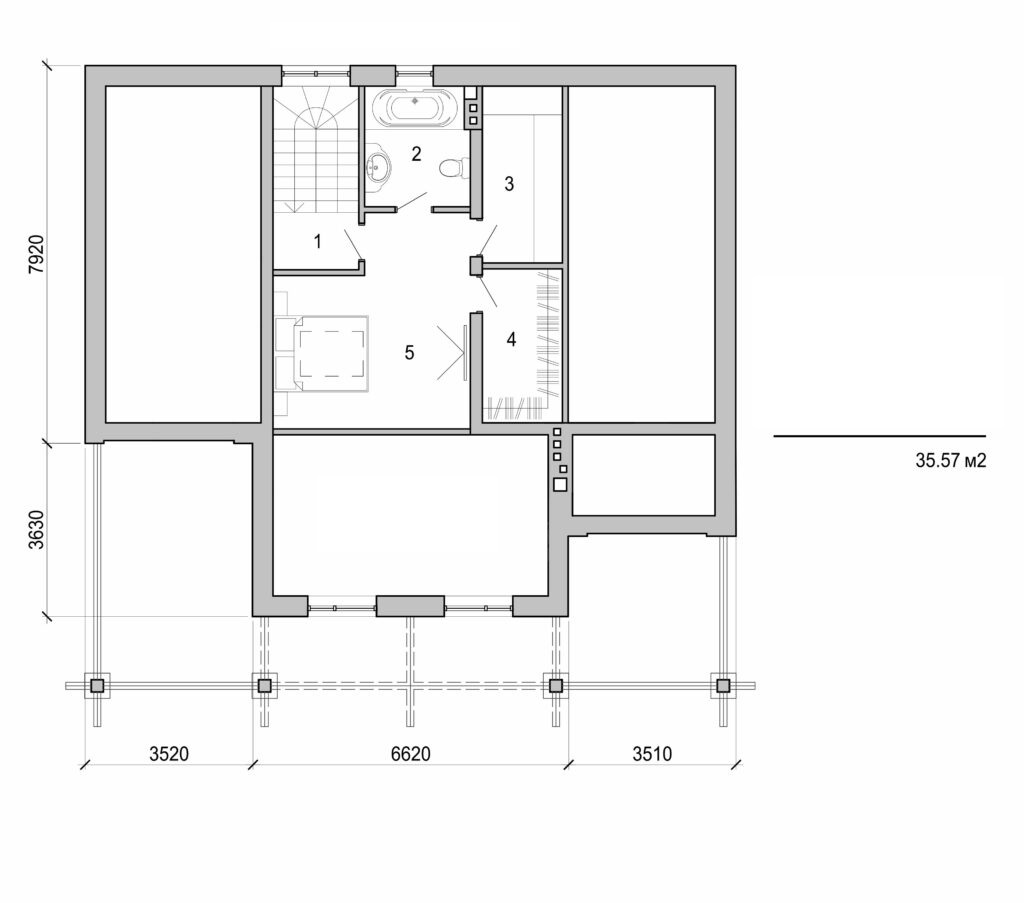
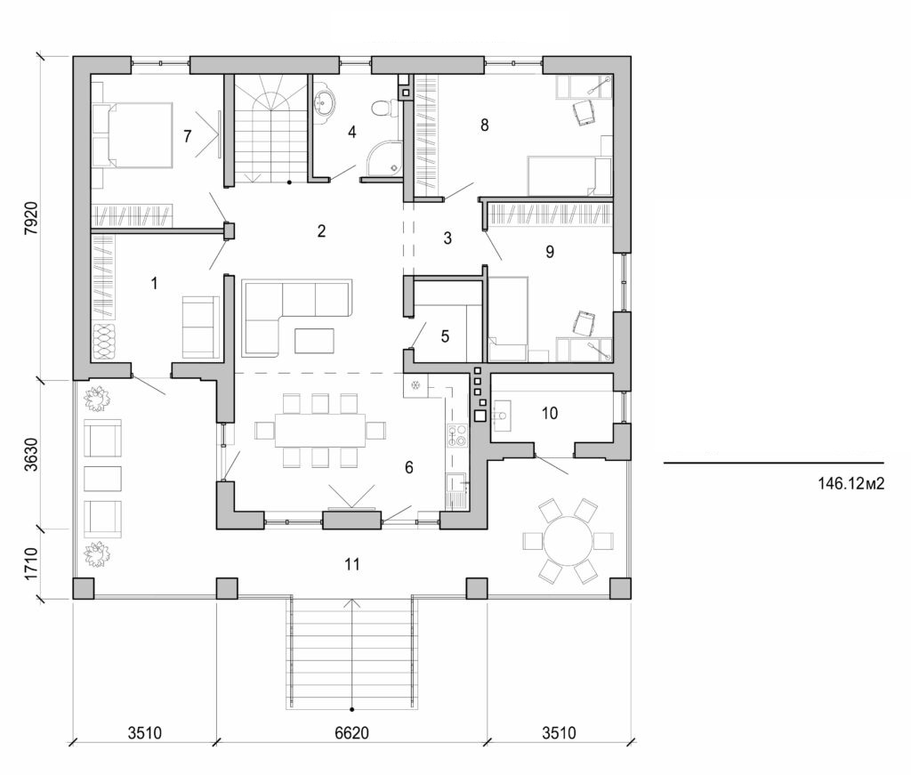
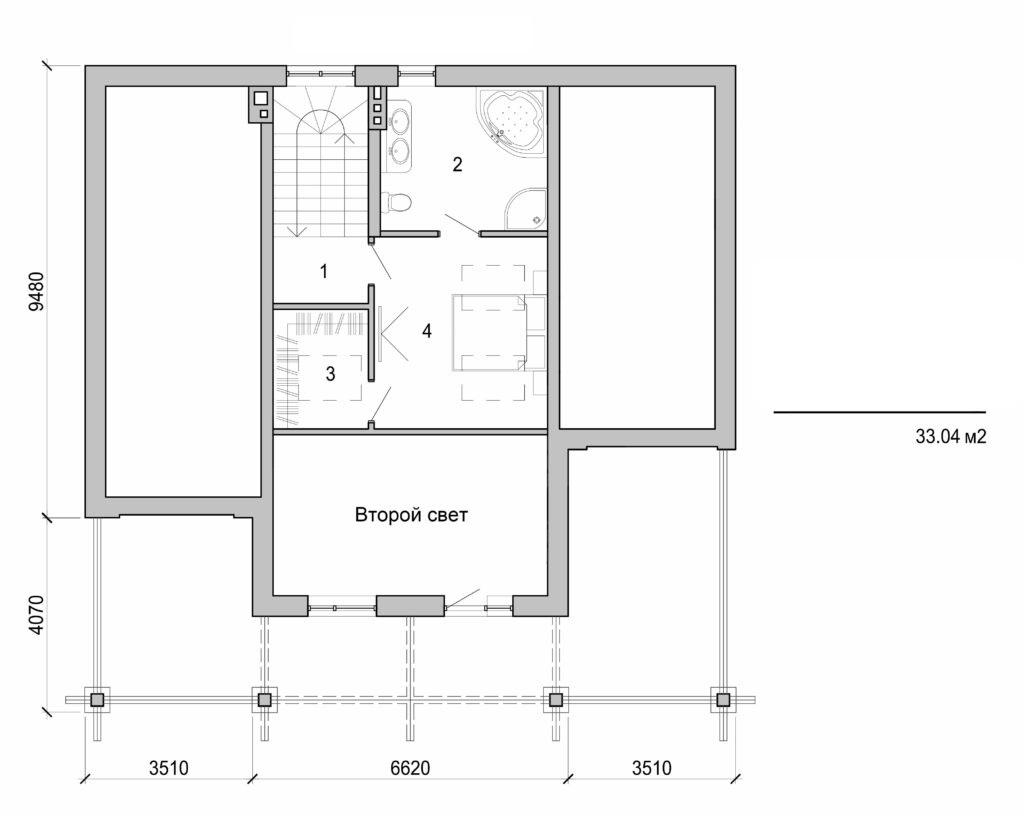
One storey cottage
179 m² total area
/ 1927 ft²
1 floor
bedrooms
Click to view
‹
›
Interested in this plan?
Contact us to get full blueprints, construction estimate, or adapt this plan to your plot and needs.
Request more informationVisualization gallery