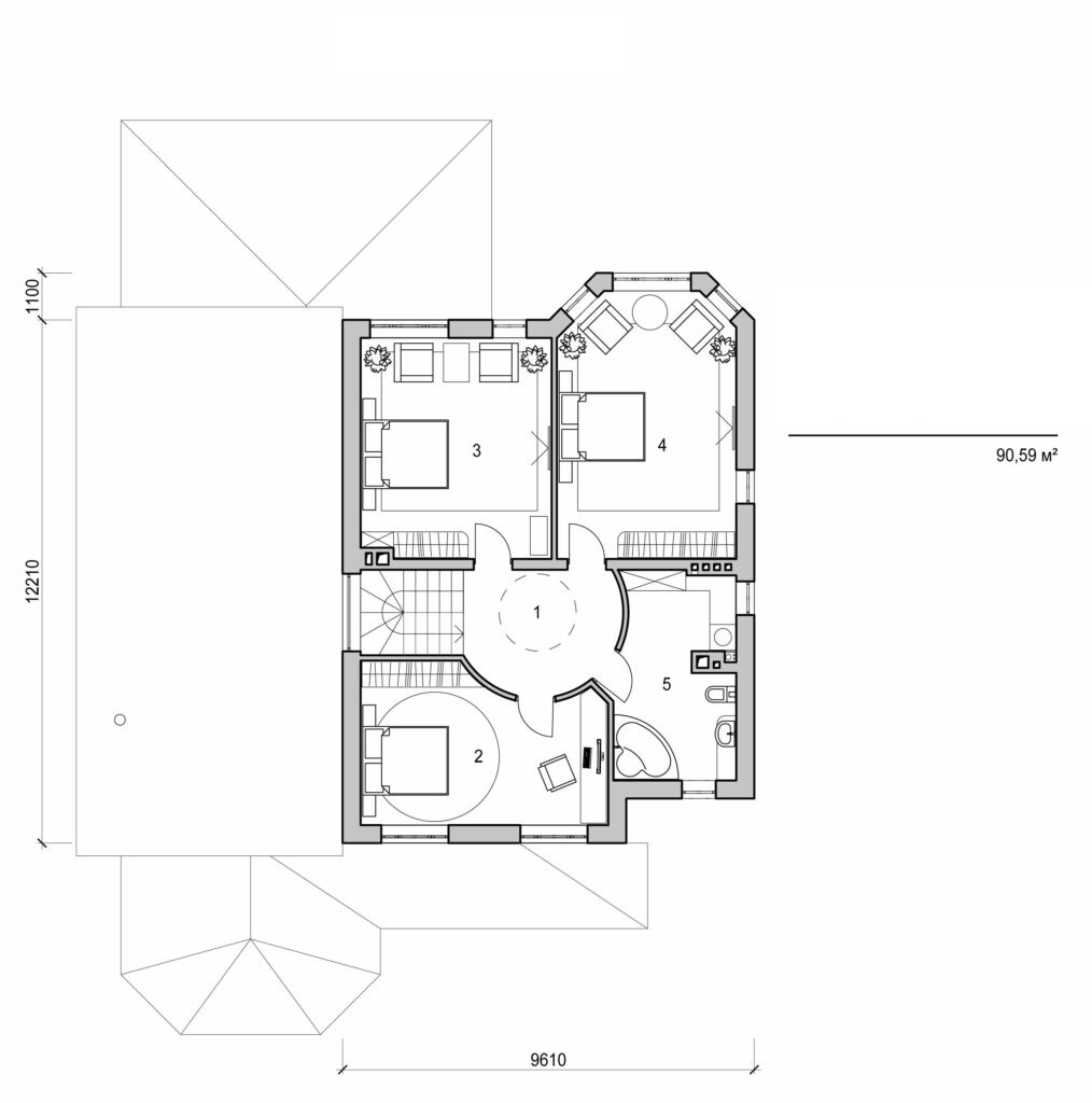
Two storey house
291 m² total area
/ 3132 ft²
2 floors
bedrooms
Click to view
‹
›
Interested in this plan?
Contact us to get full blueprints, construction estimate, or adapt this plan to your plot and needs.
Request more informationVisualization gallery