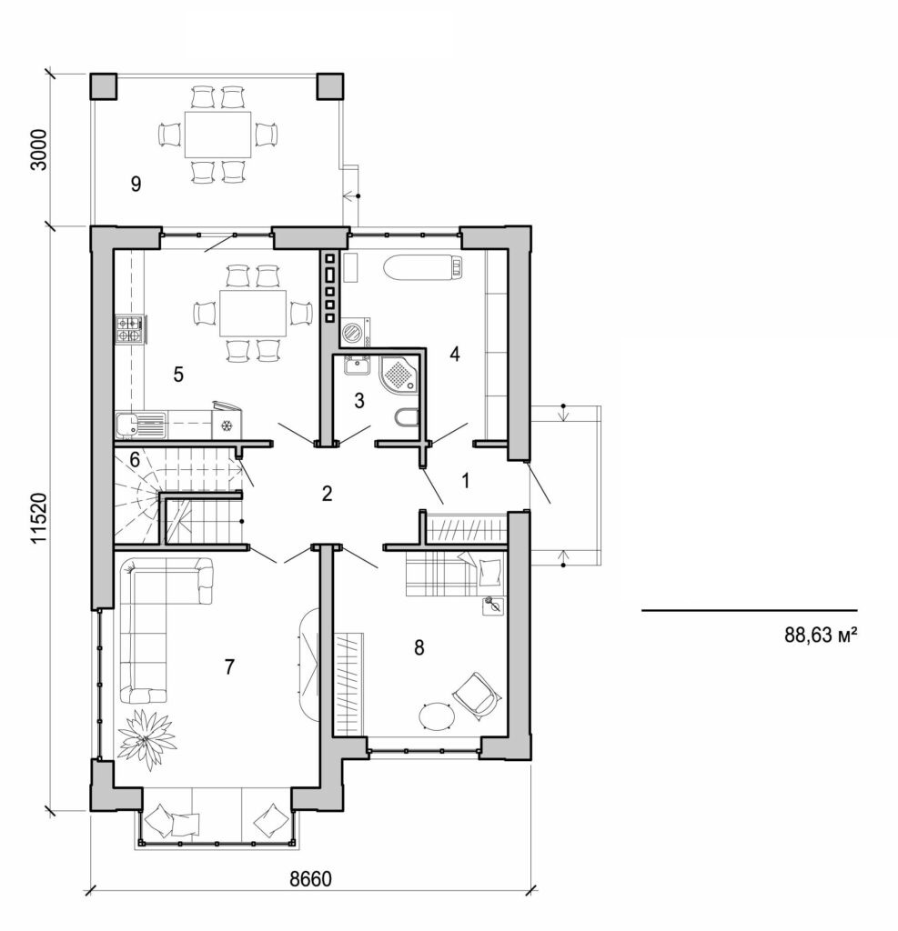
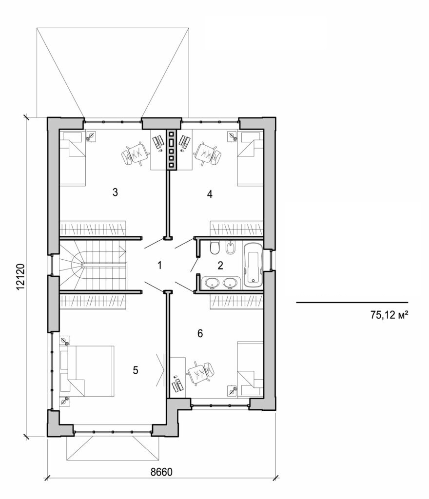
Two storey home

173 m² total area / 1862 ft² 2 floors bedrooms
Two storey home
Click to view

Interested in this plan?

Contact us to get full blueprints, construction estimate, or adapt this plan to your plot and needs.

Request more information

Visualization gallery